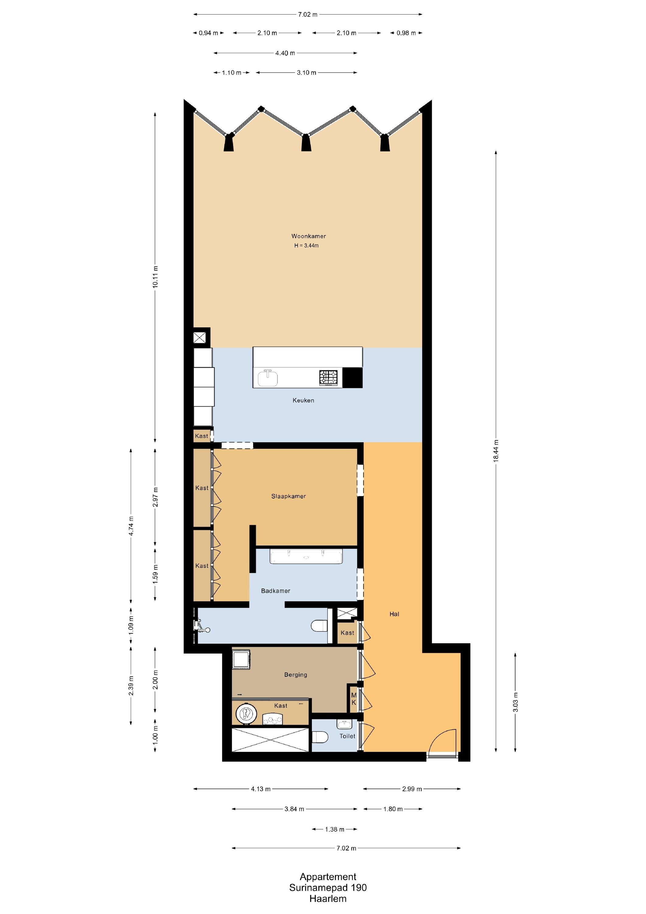
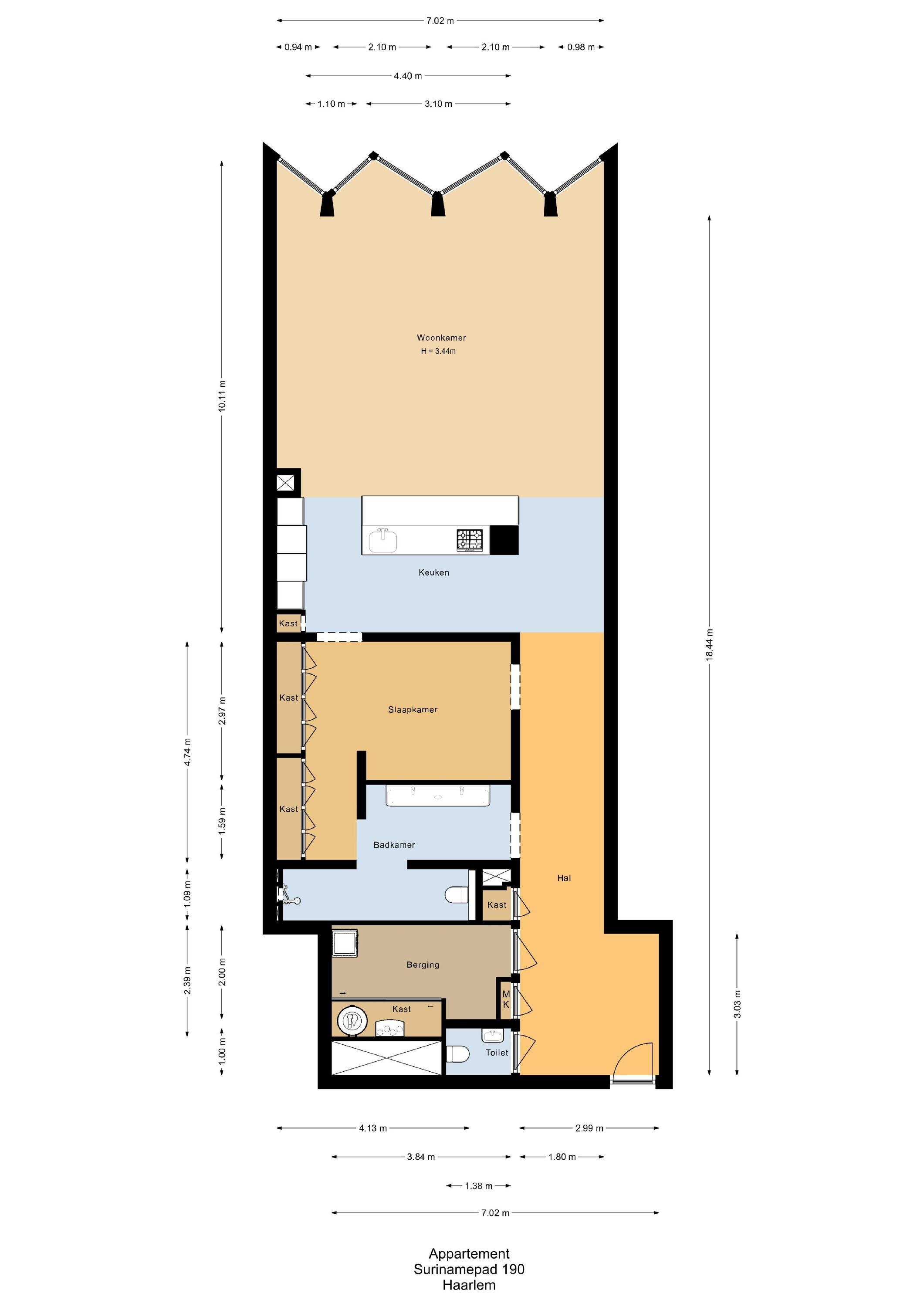
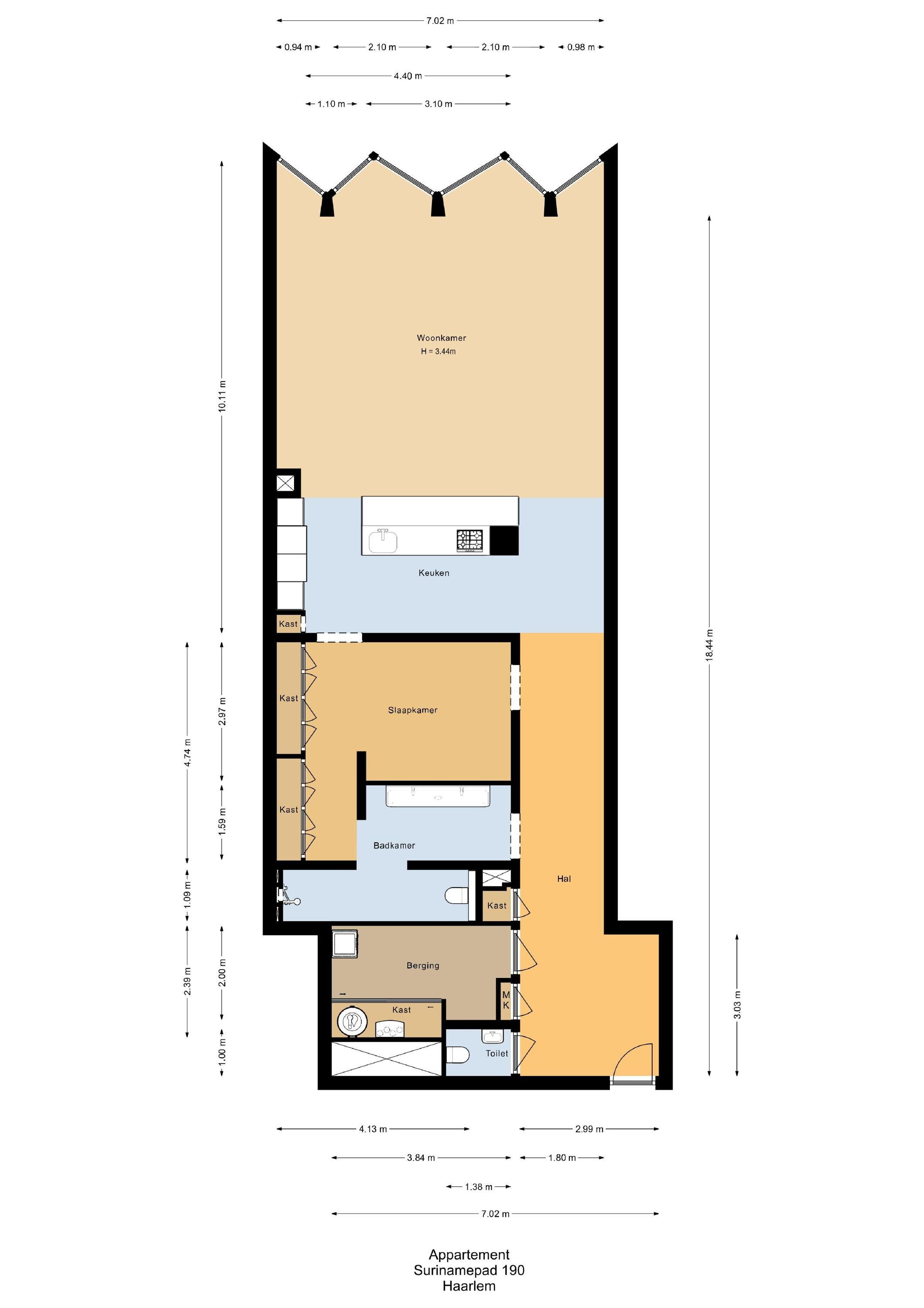
- Woonoppervlakte
- Circa 133 m²
- Inhoud
- Circa 542 m³
- Object type
- Portiekflat, appartement
- Aantal kamers
- 2 kamers (1 slaapkamers)
Je hebt New York, Londen, Parijs en… Haarlem!
Een uniek loft met internationale allure.
Dat is in het kort de beste omschrijving voor dit 133 m² grote loftappartement.
Ruimte, stijl en mogelijkheden – kortom: welkom thuis aan Surinamepad 190!
Altijd al gedroomd van een uitzonderlijk loft waar licht, ruimte en vrijheid samenkomen? Dan is Surinamepad 190 dé plek voor u.
Dit wooncomfort biedt eindeloze mogelijkheden om uw ideale thuis te creëren. Met een royale slaapkamer, een lichte woonkamer en een praktische indeling is dit de perfecte basis voor ultiem wonen dat helemaal bij u past.
De woning beschikt over één ruime slaapkamer met inloopkastenwand, maar dankzij de royale oppervlakte kunt u eenvoudig een extra slaapkamer, werkkamer of hobbyruimte realiseren. De lichte woonkamer met grote raampartijen zorgt voor een open en uitnodigende sfeer, terwijl de keuken (met eiland) en badkamer (met inloopdouche) wachten op uw persoonlijke touch.
Wat deze woning extra bijzonder maakt, is de ligging in de groene en rustige omgeving van het Surinamepad, met alle voorzieningen binnen handbereik. Bovendien maakt u deel uit van Factory Haarlem, een iconisch gebouw met industriële lofts, hoge plafonds van 3,5 (!) meter, grote ramen voor veel lichtinval en duurzame installaties zoals een bron-warmtepomp en zonnepanelen op het dak.
Dit maakt wonen hier zo bijzonder:
- Circa 133 m² woonoppervlak – zeldzaam ruim
- 1 royale slaapkamer, met mogelijkheid voor meer
- Veel daglicht en een open, luchtige sfeer
- Rustige ligging met voorzieningen dichtbij
- Deel uitmaken van het iconische Factory Haarlem-project
- Duurzaam en gasloos wonen in een groene omgeving
Surinamepad 190 is meer dan een woning: het is een kans om uw woonwensen waar te maken in een unieke en inspirerende omgeving. Kom langs en ervaar zelf hoe deze ruimte, het licht en het karakter van Factory Haarlem u inspireren om hier uw thuis te maken.
Check de miniwebsite Surinamepad190.nl voor meer informatie en het plannen van een bezichtiging!
Wij nodigen u van harte uit en zijn flexibel.
Vraagprijs: € 775.000 k.k.
Aanvaarding in overleg.
Overdracht
- Vraagprijs
- € 775.000 k.k.
- Status
- Verkocht
- Aanvaarding
- In overleg
- Bijdrage VvE
- € 313 p/m
Bouw
- Object type
- Portiekflat, appartement
- Soort bouw
- Bestaande bouw
- Soort dak
- Plat dak
Oppervlakte en inhoud
- Woonoppervlakte
- 133 m²
- Inhoud
- 542 m³
- Externe bergruimte
- 11 m²
Indeling
- Aantal kamers
- 2 kamers (1 slaapkamers)
- Aantal badkamers
- 1 badkamer
- Badkamervoorzieningen
- Toilet, dubbele wastafel, wastafelmeubel, inloopdouche
- Aantal woonlagen
- 1 woonlaag
- Voorzieningen
- Mechanische ventilatie, airconditioning, glasvezel kabel
Energie
- Energielabel
- A++
- Energielabel registratie
- 21-02-2023
- Isolatie
- Dubbel glas, volledig geïsoleerd, hr glas
- Verwarming
- Warmte terugwininstallatie
- Warm water
- Elektrische boiler eigendom
Buitenruimte
- Tuin
- Geen tuin
Bergruimte
- Schuur / berging
- Inpandig
- Voorzieningen
- Voorzien van elektra
Garage
- Soort garage
- Vrijstaand steen
- Capaciteit
- 1 auto
Parkeergelegenheid
- Soort parkeergelegenheid
- Parkeergarage
VvE checklist
- Inschrijving KvK
- Ja
- Jaarlijkse vergadering
- Ja
- Periodieke bijdrage
- Ja, € 313 p/m
- Reservefonds aanwezig
- Ja
- Onderhoudsplan
- Ja
- Opstalverzekering
- Ja
Energieverbruik in Haarlem
Energielabel deze woning
Energielabel A++
Publicatie energielabel: 21-02-2023
Stroomverbruik per jaar
(Gemiddelde appartement in Haarlem)
Gasverbruik per jaar
(Gemiddelde appartement in Haarlem)
* Cijfers zijn afkomstig van het CBS en bedoeld als indicatie en kunnen verschillen voor deze woning
Indicatie hypotheeklasten
Eigen inleg:
Spaargeld / overwaarde
Rente:
Laagste 10-jaars rente
Laagste 10-jaars rente
2,98% - Centraal Beheer Groen... - NHG
3,2% - Argenta Groen Hypotheek... - 80%
Laagste 20-jaars rente
3,19% - Centraal Beheer Groen... - NHG
3,57% - Argenta Groen Hypothee... - 80%
Laagste 30-jaars rente
3,34% - Centraal Beheer Groen... - NHG
3,74% - Argenta Groen Hypothee... - 80%
Hypotheek:
Bruto maandlasten: € 0 p/m
Netto maandlasten: € 0 p/m
Hoe berekenen we dit?
Het rentepercentage is gebaseerd op de laagste 10 jaars vaste rente voor één hypotheekdeel. De vermelde rente (3.2% zonder NHG) is gecontroleerd op 19-12-2025. Deze berekening is gebaseerd op een annuïteitenhypotheek die volledig wordt afgelost, waarbij de maandlasten gedurende de gehele looptijd gelijk blijven. De werkelijke rente en netto maandlasten kunnen variëren, afhankelijk van uw persoonlijke situatie en de hypotheekverstrekker. Raadpleeg een financieel adviseur voor een nauwkeurige berekening en advies. Aan deze berekening kunnen geen rechten worden ontleend; het dient enkel als indicatie.
Documentatie
Kadastrale kaart
Leefomgeving
BAG uittreksel
Brochure
Plattegronden PDF
WOZ waarderapport
8-5-vve-jaarrekening
8-6-planning-50-jaar-vve-factory
8-6-polis-centraal-beheer-vve-factory-haarlem
10-energielabel
11-vragenlijst-b
12-lijst-van-zaken
13-bijzonde-bodem
Bijlage-7d-strooming-geluidsonderzoek
Woz-beschikking-aanslagbiljet-gemeentelijke-belastingen
4-kadastrale-eigendomsinformatie
5-kadastrale-kaart
7-akte-van-levering
8-1-splitsingakte-factory-08-01-2021
8-2-splitsingstekening
8-3-vve-notulen
8-4-mjop
Bezichtiging
Bod uitbrengen
Waardebepaling
Zoekopdracht
Alles downloaden
Zonnegrenzen bekijken
Op de kaart
Inwoners in Haarlem
Cijfers voor postcodegebied 2035
- Totaal aantal inwoners
- 7620 inwoners
- Mannen
- 49%
- Vrouwen
- 51%
Inwoners in Haarlem
Cijfers voor postcodegebied 2035
- tot 15 jaar
- 20%
- 15 tot 25 jaar
- 11%
- 25 tot 35 jaar
- 31%
- 45 tot 65 jaar
- 23%
- 65 en ouder
- 14%
Huishoudens in Haarlem
Cijfers voor postcodegebied 2035
- Eenpersoons zonder kinderen
- 38%
- Meerpersoons zonder kinderen
- 23%
- Huishoudens zonder kinderen
- 61%
Huishoudens in Haarlem
Cijfers voor postcodegebied 2035
- Huishoudens met één kind
- 10%
- Huishoudens met meerdere kinderen
- 29%
- Huishoudens met kinderen
- 39%
Woningen in Haarlem
Cijfers voor postcodegebied 2035
- Woningen voor 1945
- 1%
- Woningen tussen 1945 en 1965
- 18%
- Woningen tussen 1965 en 1975
- 49%
- Woningen tussen 1975 en 1985
- 1%
- Woningen tussen 1985 en 1995
- 14%
Woningen in Haarlem
Cijfers voor postcodegebied 2035
- Woningen tussen 1995 en 2005
- 2%
- Woningen tussen 2005 en 2015
- 6%
- Woningen na 2015
- 11%
- Huurwoningen
- 60%
- Koopwoningen
- 40%
Overige in Haarlem
Cijfers voor postcodegebied 2035
- Gemiddelde WOZ waarde
- € 256.000,-
- Personen onder de 65 met uitkering
- 13%
Overige in Haarlem
Cijfers voor postcodegebied 2035
- Adressen per km²
- 3010
- Stedelijkheid (schaal 1 op 5)
- 100%
Korte feiten over Haarlem
Haarlem is een stad en gemeente in Nederland en de hoofdstad van de provincie Noord-Holland. De stad ligt aan de rivier het Spaarne en in de regio Zuid-Kennemerland.
Waar staat PMA Meerstad voor?
Als je met ons samenwerkt, werk je met een team dat jouw wensen en behoeften voorop stelt. In de afgelopen 6 jaar hebben we veel ervaring opgedaan in het kopen, verhuren en beheren van woningen door heel Nederland en willen dit graag met jou delen. Professioneel, toegewijd en gefocust op jou als klant.
Nieuwste reviews
-
Surinamepad 232
Bas is kundig, betrokken en zeer prettig in de omgang, heeft een dijk aan ervaring en een goed netwerk, neemt de tijd voor je als klant en i...
-
Briljantstraat 230
Wij hebben alles uit handen kunnen geven aan Kees van PMA Makelaars. Kees heeft alles zorgvuldig opgepakt en een snelle verkoop werd daardoo...
-
Gasthuisvest 7
Goede service en alles perfect geregeld! Op kantoor ontvangen en alles duidelijk doorgesproken en ook een huurder was zo geregeld.